BUILD ON LOCATION / CHURCH OF HOLY GHOST FOLLOWING
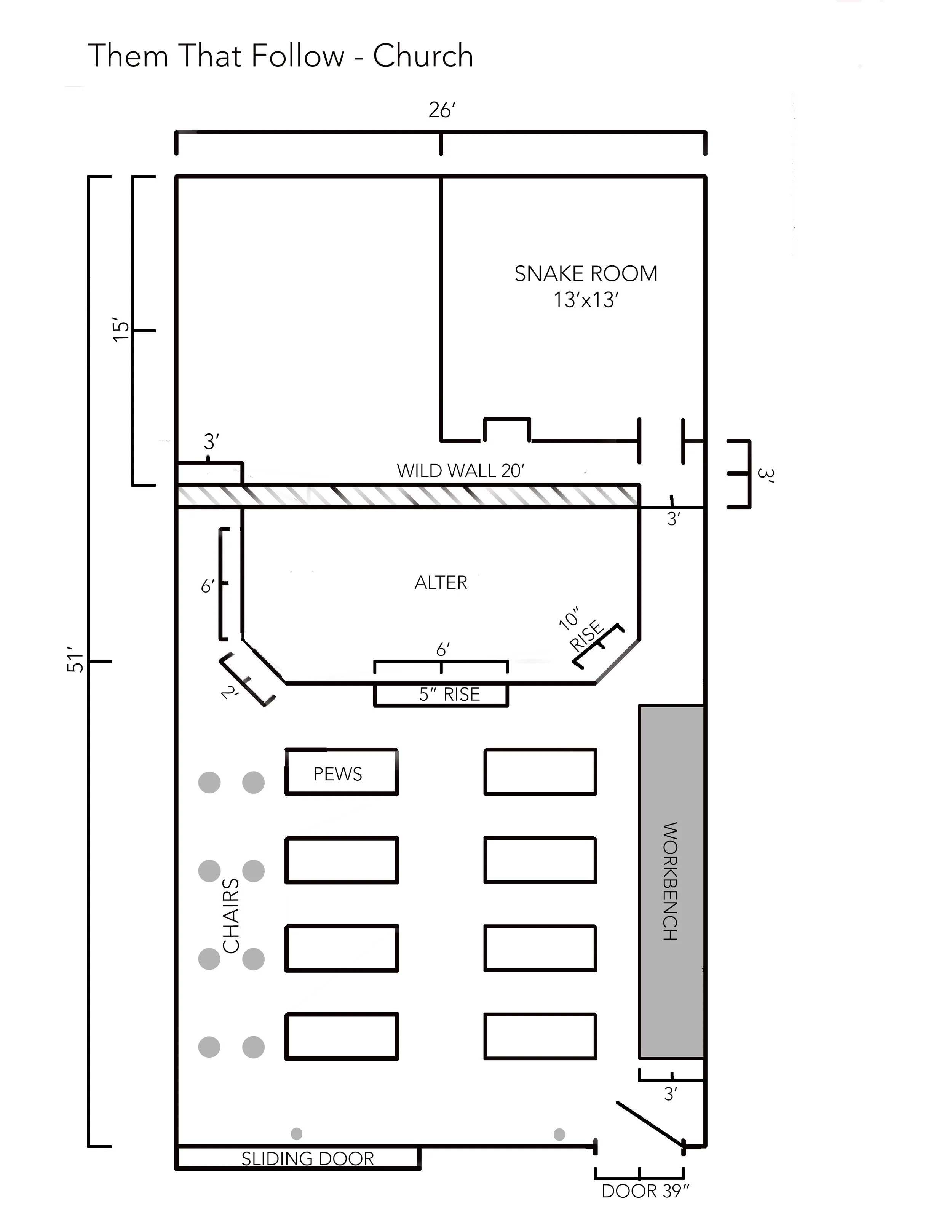
OVERHEAD SKETCH OF BUILD AND LAYOUT
AFTER / ON LOCATION / CHILD’S HOUSE
BEFORE / ON LOCATION / CHILD’S HOUSE
HAND PAINTED GRAPHICS / MARK 16:17:18 SIGNAGE
BUILD ON LOCATION / CHURCH OF HOLY GHOST FOLLOWING
OVERHEAD SKETCH OF BUILD AND LAYOUT
AFTER / ON LOCATION / CHILD’S HOUSE
BEFORE / ON LOCATION / CHILD’S HOUSE
HAND PAINTED GRAPHICS / MARK 16:17:18 SIGNAGE